CASA
MARIANA CORRÊA

Localizada no bairro Jardim Paulistano, a Casa MC nasce com desafio de supreender os apaixonados por arquitetura.

O estilo Belga contemporaneo com influências do minimalismo nos conectaram ainda mais com nossas inspirações ao projeta-la.

Fomos buscar os melhores revestimentos ao redor do mundo. Tijolos "acinzentados" feitos manualmente na Itália, telhas de pedra importadas da Espanha, janelas de cobertura da Polônia são alguns dos diversos e exclusivos produtos que tornam essa casa única e singular.

Aos visitantes sugerimos a maxima atenção aos detalhes, a cada espécie de planta implantada no jardim, a sutileza dos caixilhos minimalista, as maçanetas italianas desenhadas por Rodolfo Dordini, o piso e portas em carvalho europeu.

Não foi por acaso que levaram quatro anos para esse projeto se concretizar.

Através do Insta @542.marianacorrea você poderá acompanhar passo a passo dessa prazerosa jornada.

Para agendamento de visitas

Whatsapp
11 95439 0011

adm@kststudio.com.br

Plantas



Área Terreno

256 m2

Área Construida

400 m2

Área Total

482 m2


Térreo

Sala estar, home theater, cozinha, lavado, hall de entrada, garagem descoberta para dois carros, jardim lateral e jardim do fundo

1º Pavimento

Quarto casal + banheiro sr + banheiro sra + closets, suite filho 1

2º Pavimento

Suite filho 2

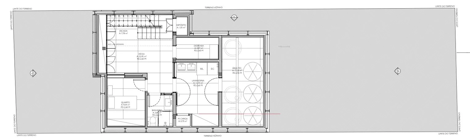
Sub-solo

Quarto de funcionário, banheiro funcionáraio, despensa, lavanderia, monta carga, área técnica


Projetos

Arquitetura:  Kiko Salomão + Tanaka  - Instagram

Construtora:  Alle Engenharia - Instagram

Projeto estrutura: Rubens Leão - Leão Associados

Projeto de fundação: Apoio

Projeto de hidráulica: Marcelo Zamaro

Projeto de elétrica: Marcelo Zamaro

Projeto de ar condicionado: Logiproject - Instagram

Projeto de telhado: João Luís Marques da Costa

Projeto de iluminação: Mingrone  - Instagram

Projeto de automação e segurança: GF

Projeto de paisagismo: Rodrigo Oliveira - Instagram

Projeto de irrigação: Regatec - Instagram


Memorial
Descritivo

Sistema de ar condicionado multi-split Daikin - Instagram

Grelhas lineares embutidas e sistema dutado

Fachadas revestidas com tijolos importado da Itália Fornace S. Antanselmo - Instagram

Telhas de cobertura importada da Espanha Pizarra - Instagram

Janelas de cobertura importadas da Polônia - Instagram

Caixilharia Lumisystem - Instagram

Revestimento piso social e banheiros - importados da Itália - Instagram

Revestimento piso íntimo - madeira carvalho europeu importado - Instagram

Frames das janelas e bancadas basaltina e calata importados da Itália  - Instagram

Automação Lutron - Instagram

Batentes das portas inox embutidos com dobradiça invisível

Infra de sistema de segurança

Jardim e árvores adultas escolhidas pelo paisagista e cliente

Gerador a gás 18 KVA Generac  - Instagram

Luminárias FLOS importadas da Itália - Instagram

Metais e louças Kholer - Instagram

PARA AGENDAMENTO DE VISITAS

WHATSAPP
11 95439 0011